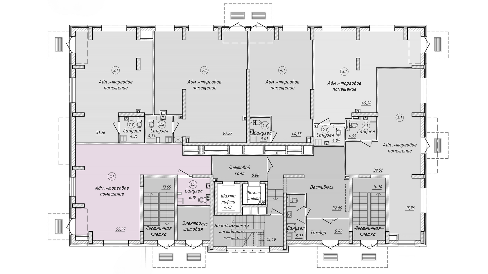
Помещение № 1.1

$
102548.00
Коммерческие помещения в ЖК NEWCITY – это выгодное вложение в будущее вашего бизнеса!
• Расположение на первом этаже обеспечивает высокий трафик и удобство для посетителей
• Собственный отдельный вход гарантирует независимость эксплуатации и привлекает целевую аудиторию
• Каждый объект оборудован собственным санузлом для комфорта персонала и клиентов
• Высота потолков 3 метра обеспечивает ощущение простора и дает широкие возможности для оформления интерьера.

Скачать презентацию
Характеристики
Расположение на этаже

Характеристики

Тип дома: Каркасно-блочный

Отопление: Разведено

Электрика: Разведена

Тип парковки: Подземная и наземная

Отделка: Строительная

Cрок окончания строительства: 4 квартал 2025 г.

Расположение на этаже